airplanebooksbriefcase business cogs cross election entertainment fish house law lockmedicalpeopleselfservices socialtax

Ilulissat byggefelter i høring

KPT 58
26. marts 2025

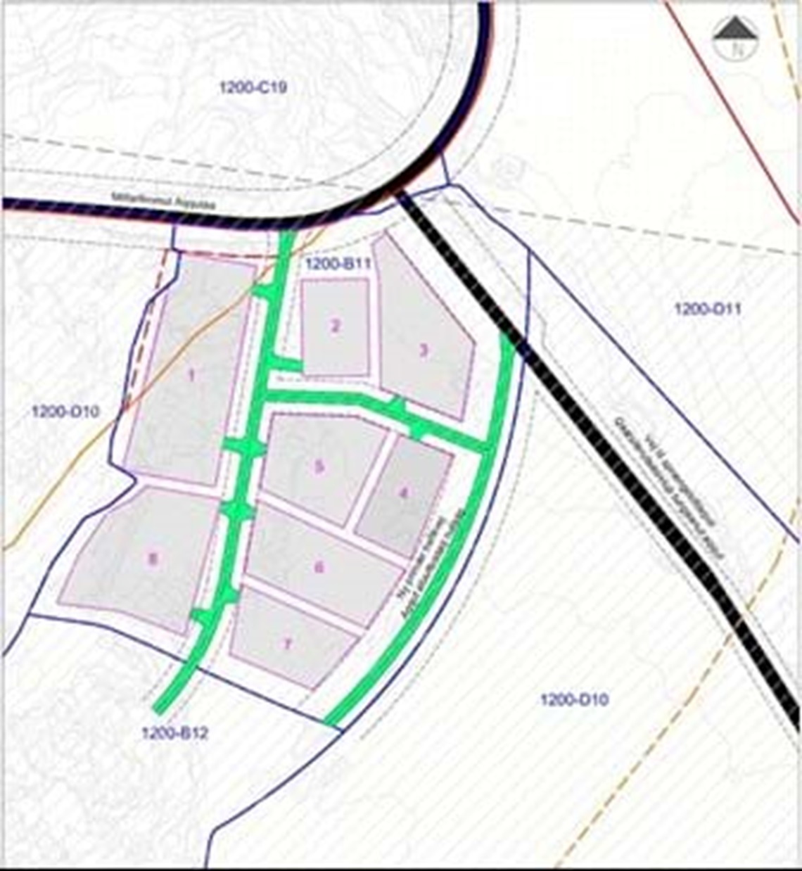
Forslag til Kommuneplantillæg nr. 58 ILU 1200-B11 " Erhvervsområde ", Ilulissat

Avannaata Kommunia har modtaget en projektansøgning fra fiskerivirksomheden Aalisa ApS om at etablere en ny fiskefabrik, i delområde B11, med tildeling af nye byggefelter. 

Forslag til Kommuneplantillæg nr. 58 er fremlægges i offentlig høring i perioden: 26.03.2025 til og med 07.05.2025.

Såfremt du har indsigelser eller bemærkninger til høringen skal de være kommunen i hænde senest den 7. maj 2025.

Forslag til kommuneplantillæg nr. 58

Kommuneplantillæggets formål

Kommuneplantillæg nr. 58 udlægger nye byggefelter inden for delområde B11, for at give mulighed for opførelse af de påkrævede bygninger.

Byggefelt 1 og 8 forbeholdes ansøgeren, Aalisa ApS, så virksomheden kan sikre et sammenhængende og effektivt produktionsområde. Byggefelt 2 reserveres til Nukissiorfiit, sådan at de kan anlægge en transformerstation.

Forslaget til kommuneplantillægget er i høring i 6 uger. I den periode kan alle – borgere, virksomheder, institutioner, foreninger m.fl. – fremsætte indsigelser, bemærkninger og ændringsforslag.

Du kan skrive dit høringssvar

* direkte til kommunen gennem kommuneplanens hjemmeside https://kommuneplania.avannaata.gl/dk/hoeringer/indgiv-hoeringssvar/ eller

* pr. mail til Plan@avannaata.gl 

* du kan også aflevere dit svar til din lokale Sullissivik eller sende det til Kommunen.

Efter offentlighedsfasen behandler kommunalbestyrelsen eventuelle indsigelser og ændringsforslag, og derefter kan forslaget vedtages endeligt.

Såfremt du har indsigelser eller bemærkninger til høringen skal de være kommunen i hænde senest den 07.05.2025.